Villa a schiera in vendita

Truccazzano, Via Giosuè Carducci
€ 263.000
4 locali 4 locali
155 Mq 155 Mq
2 bagni 2 bagni

Villa a schiera in vendita

Truccazzano, Via Giosuè Carducci

Descrizione annuncio

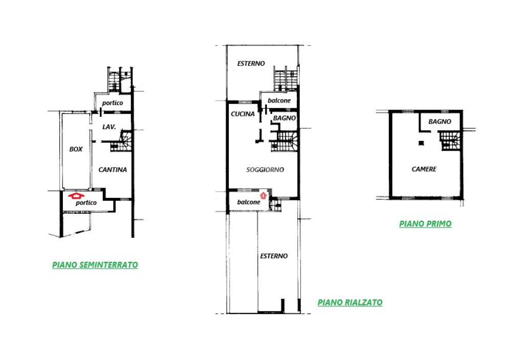
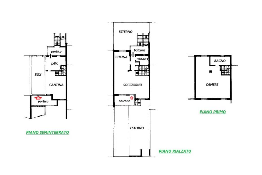
TRUCCAZZANO: In tranquilla zona residenziale, proponiamo in vendita villa a schiera centrale, di 4 locali e doppi servizi.

L'abitazione, di 115 mq, si sviluppa al piano rialzato e al piano primo. L'ingresso si apre sulla zona giorno, composta da un ampio soggiorno con camino, cucina abitabile e bagno di servizio. La zona notte si trova al piano primo, suddiviso in disimpegno, tre camere da letto e bagno con doccia.

Tramite la scala interna si accede al piano seminterrato, di ulteriori 31 mq, dove troviamo la cantina ad uso taverna e la lavanderia. Dalla lavanderia si ha accesso diretto al box di 22 mq.

Completa la proprietà l'area esterna sul davanti di 65 mq e l'area esterna pavimentata sul retro di ulteriori 27 mq. La proprietà dispone di balcone d'ingresso di 6,80 mq e balcone sul retro di 4,70 mq.

I serramenti sono in legno e doppio vetro con persiane in legno e zanzariere; i pavimenti sono in monocottura nella zona giorno e in laminato nella zona notte. Il riscaldamento è autonomo e la caldaia, a condensazione, è stata sostituita a marzo 2025.

Nessuna spesa condominiale.

Mostra tutto

Nelle vicinanze

Trasporto pubblico Trasporto pubblico
Trasporto pubblico
530 m
Pozzuolo Martesana FS
Pozzuolo Martesana FS
2,8 Km
stazione di Pozzuolo Martesana
stazione di Pozzuolo Martesana
2,8 Km
Trecella
Trecella
2,9 Km
Scuole Scuole
Scuole
260 m
Farmacia Farmacia
Farmacia Comunale
2,1 Km
Negozi Negozi
Negozi
740 m
Al Prestinè
770 m
Bar Bar
Bar della Piazza
770 m
Bar
2,0 Km
Ristoranti Ristoranti
Anima & Mosto
620 m
Trattoria Antica Vittoria
800 m
Ristoranti
2,0 Km
L'antico sapore
2,5 Km
Agriturismo Cascina Arrigona
2,5 Km
Mostra tutto

Caratteristiche

Rif.:
61154988
Piano:
Su più livelli di 3
Totale piani:
3
Box:
1
Balconi:
2
Camere da letto:
3
Mostra tutto
Prezzo Prezzo
€ 263.000
Rata mutuo Rata mutuo
€ 1.239 / mese
Spese annue Spese annue
€ 0
Proponi il tuo prezzoProponi il tuo prezzo

Classe Energetica

E
E
E
E
E
E
E
E
E
EP globale non rinnovabile:
174.04 kW h/m² anno
EP globale rinnovabile:
0.00 kW h/m² anno
EP invernale del fabbricato:
EP estiva del fabbricato:
Anno di costruzione:
1985
Riscaldamento:
Autonomo
Tipo impianto:
A radiatori
Tipo alimentazione:
Altro

Ti interessa visionare l'immobile?

Fissa un appuntamento  Fissa un appuntamento

Richiedi informazioni

Clicca su Leggi per aprire l'informativa
* Questi campi sono obbligatori

Calcola il tuo mutuo

Semplice e senza impegno
Anticipo

( % )
Mutuo

( % )

pochi semplici passi

inserisci i tuoi dati
Questionario completato
Grazie per aver richiesto un appuntamento senza impegno con un nostro Consulente del Credito e Assicurativo.

Hai inserito correttamente tutti i dati necessari e a breve riceverai una e-mail con un link da convalidare per inviare i tuoi dati.
Affiliato
Tecnoadda Srl
P.zza Vittorio Emanuele II, 32 26027 Rivolta D'Adda (CR)

Il nostro staff


  • Emilio Cattolico
    Affiliato

  • Stefano Mazzocco
    Responsabile

  • Cristina Gualdoni
    Coordinatrice

  • Mario Di Lorenzo
    Collaboratore

  • Alessia Facchetti
    Coordinatrice

  • Claudio Viavattene
    Collaboratore
P.zza Vittorio Emanuele II, 32 26027 Rivolta D'Adda (CR)
Zona: Rivolta d'Adda - Arzago d'Adda - Agnadello
Mostra su mappa
Orari: da lunedì a venerdì dalle ore 09.00 alle ore 20.00; sabato dalle ore 09.00 alle 12.30 e dalle 14.30 alle ore 18.00
Affiliato
Tecnoadda Srl
P.zza Vittorio Emanuele II, 32 26027 Rivolta D'Adda (CR)

2026 Tecnocasa Franchising S.p.A. - P. IVA 08365160152 - Via Monte Bianco 60/A 20089 Rozzano (MI). Ogni agenzia ha un proprio titolare ed è autonoma. Privacy policy | Policy utilizzo | Cookie policy