Villa a schiera in vendita

Rivolta D'Adda, Via Colombo
€ 239.000
4 locali 4 locali
166 Mq 166 Mq
2 bagni 2 bagni

Villa a schiera in vendita

Rivolta D'Adda, Via Colombo

Descrizione annuncio

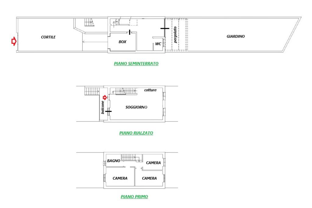
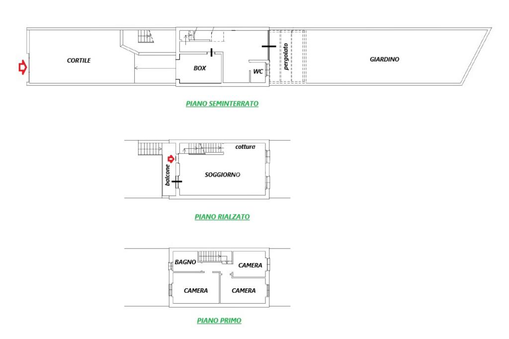
RIVOLTA D'ADDA: Alle porte del paese, posta in strada a fondo chiuso, proponiamo in vendita villa a schiera centrale di 4 locali e doppi servizi, con area esterna privata fronte e retro.

L'immobile è stato ristrutturato internamente nel 2017.

La parte abitativa principale, di 117 mq, si sviluppa su due livelli. Al piano rialzato, raggiungibile attraverso qualche scalino esterno, troviamo la zona giorno, composta da un luminoso soggiorno open space con cucina a vista. La zona giorno dispone di balcone d'ingresso di circa 7 mq. La zona notte si trova al piano primo, dove il disimpegno serve le tre camere da letto e il bagno con doccia.

Tramite la scala interna si accede al piano seminterrato, di ulteriori 41 mq, dove troviamo la cantina rifinita con angolo lavanderia e bagno e l'accesso al box singolo di 15 mq. Dal piano seminterrato si ha accesso al giardino privato posto sul retro di 100 mq con pergolato di ulteriori 20 mq.

Completa la proprietà l'area esterna di 87 mq, pavimentata, posta sul fronte dell'abitazione.

Nessuna spesa condominiale.

Mostra tutto

Nelle vicinanze

Trasporto pubblico Trasporto pubblico
Via Giulio Cesare - ex consorzio
Via Giulio Cesare - ex consorzio
200 m
Via GIulio Cesare - edicola
Via GIulio Cesare - edicola
630 m
Ricariche auto elettriche Ricariche auto elettriche
Evbility Rivolta d'adda
720 m
U2 Supermercato Rivolta d'Adda | EnelX
1,2 Km
Scuole Scuole
Scuola Elementare E. Calvi
830 m
Scuola Media D. Birago
860 m
Ospedali Ospedali
Ospedale "Santa Marta"
690 m
Supermercati Supermercati
MD Market
160 m
U2
1,2 Km
Carrefour
1,3 Km
Negozi Negozi
Casa del Pane
840 m
Panificio Pasticceria Maristella
970 m
Bar Bar
Bar Centrale
890 m
Bar
2,0 Km
Ristoranti Ristoranti
Agriturismo Alla Ribella
790 m
Agriturismo La Cascina Rossa
1,3 Km
Ristorante Italia
1,6 Km
L'antico sapore
1,8 Km
Agriturismo Le Monache
2,3 Km
Mostra tutto

Caratteristiche

Rif.:
61178576
Piano:
Su più livelli di 3
Totale piani:
3
Box:
1
Balconi:
1
Camere da letto:
3
Mostra tutto
Prezzo Prezzo
€ 239.000
Rata mutuo Rata mutuo
€ 1.134 / mese
Spese annue Spese annue
€ 0
Proponi il tuo prezzoProponi il tuo prezzo

Classe Energetica

E
E
E
E
E
E
E
E
E
EP globale non rinnovabile:
206.96 kW h/m² anno
EP globale rinnovabile:
0.86 kW h/m² anno
EP invernale del fabbricato:
EP estiva del fabbricato:
Anno di costruzione:
1984
Riscaldamento:
Autonomo
Tipo impianto:
A radiatori
Tipo alimentazione:
Altro

Ti interessa visionare l'immobile?

Fissa un appuntamento  Fissa un appuntamento

Richiedi informazioni

Clicca su Leggi per aprire l'informativa
* Questi campi sono obbligatori

Calcola il tuo mutuo

Semplice e senza impegno
Anticipo

( % )
Mutuo

( % )

pochi semplici passi

inserisci i tuoi dati
Questionario completato
Grazie per aver richiesto un appuntamento senza impegno con un nostro Consulente del Credito e Assicurativo.

Hai inserito correttamente tutti i dati necessari e a breve riceverai una e-mail con un link da convalidare per inviare i tuoi dati.
Affiliato
Tecnoadda Srl
P.zza Vittorio Emanuele II, 32 26027 Rivolta D'Adda (CR)

Il nostro staff


  • Emilio Cattolico
    Affiliato

  • Stefano Mazzocco
    Responsabile

  • Cristina Gualdoni
    Coordinatrice

  • Mario Di Lorenzo
    Collaboratore

  • Alessia Facchetti
    Coordinatrice

  • Claudio Viavattene
    Collaboratore
P.zza Vittorio Emanuele II, 32 26027 Rivolta D'Adda (CR)
Zona: Rivolta d'Adda - Arzago d'Adda - Agnadello
Mostra su mappa
Orari: da lunedì a venerdì dalle ore 09.00 alle ore 20.00; sabato dalle ore 09.00 alle 12.30 e dalle 14.30 alle ore 18.00
Affiliato
Tecnoadda Srl
P.zza Vittorio Emanuele II, 32 26027 Rivolta D'Adda (CR)

2026 Tecnocasa Franchising S.p.A. - P. IVA 08365160152 - Via Monte Bianco 60/A 20089 Rozzano (MI). Ogni agenzia ha un proprio titolare ed è autonoma. Privacy policy | Policy utilizzo | Cookie policy