Casa indipendente in vendita

Rivolta D'Adda, Via Guglielmo Marconi
€ 210.000
3 locali 3 locali
145 Mq 145 Mq
2 bagni 2 bagni

Casa indipendente in vendita

Rivolta D'Adda, Via Guglielmo Marconi

Descrizione annuncio

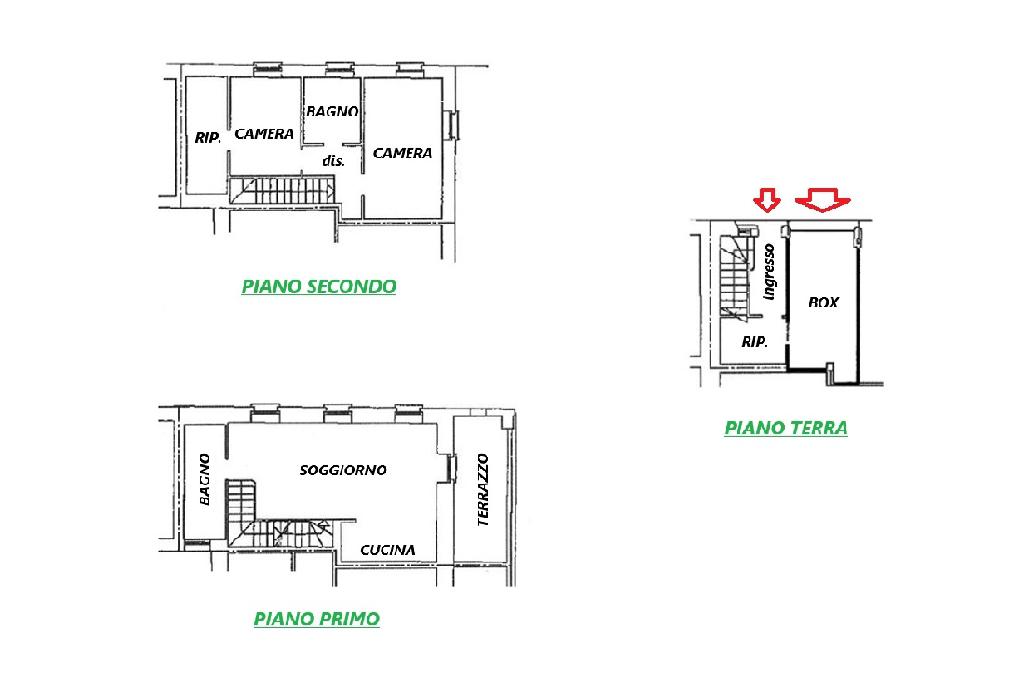
RIVOLTA D'ADDA: In centro paese, proponiamo in vendita casa indipendente di tre locali e servizi con box e terrazzo.

L'immobile è stato completamente ristrutturato nel 2008 e si sviluppa su tre livelli.

Al piano terra troviamo l'ingresso all'abitazione, di 16 mq, con il vano scala che porta ai piani superiori, un ripostiglio e l'accesso diretto al box singolo, posto anch'esso al piano terra, con basculante elettrica. Sia l'ingresso all'abitazione sia quello carrale sono posti direttamente su strada.

La parte abitativa principale, di 124 mq, si sviluppa al piano primo e secondo. Al piano primo troviamo la zona giorno, composta da un unico locale open space suddiviso in angolo cucina e zona relax, caratterizzata dal camino, e dal bagno/lavanderia. Dalla cucina si ha accesso al terrazzo coperto di 10 mq con esposizione a est.

La zona notte si trova al piano secondo e si suddivide in disimpegno, bagno con doccia, camera matrimoniale e cameretta con rispostiglio ad uso cabina armadio.

I serramenti sono in pvc e doppio vetro con persiane in pvc; i pavimenti sono in gres porcellanato, mentre la zona notte è rifinita in parquet. L'immobile dispone di riscaldamento autonomo, caldaia sostituita a fine 2024, aria condizionata, zanzariere e porta blindata.

Nessuna spesa condominiale.

Mostra tutto

Nelle vicinanze

Trasporto pubblico Trasporto pubblico
Via GIulio Cesare - edicola
Via GIulio Cesare - edicola
290 m
Via Matteotti - posta
Via Matteotti - posta
390 m
Ricariche auto elettriche Ricariche auto elettriche
Evbility Rivolta d'adda
230 m
U2 Supermercato Rivolta d'Adda | EnelX
370 m
Scuole Scuole
Scuola Elementare E. Calvi
170 m
Scuola Media D. Birago
250 m
Ospedali Ospedali
Ospedale "Santa Marta"
220 m
Supermercati Supermercati
U2
380 m
Carrefour
500 m
MD Market
760 m
Negozi Negozi
Casa del Pane
110 m
Panificio Pasticceria Maristella
110 m
Bar Bar
Bar Centrale
90 m
Bar
1,7 Km
Ristoranti Ristoranti
Ristorante Italia
720 m
L'antico sapore
1,1 Km
Agriturismo Alla Ribella
1,7 Km
Agriturismo Le Monache
2,1 Km
Agriturismo La Cascina Rossa
2,1 Km
Mostra tutto

Caratteristiche

Rif.:
61010145
Piano:
Su più livelli di 3
Totale piani:
3
Box:
1
Terrazzi:
1
Camere da letto:
2
Mostra tutto
Prezzo Prezzo
€ 210.000
Rata mutuo Rata mutuo
€ 968 / mese
Spese annue Spese annue
€ 0
Proponi il tuo prezzoProponi il tuo prezzo

Classe Energetica

D
D
D
D
D
D
D
D
D
EP globale non rinnovabile:
136.22 kW h/m² anno
EP globale rinnovabile:
0.26 kW h/m² anno
EP invernale del fabbricato:
EP estiva del fabbricato:
Anno di costruzione:
1967
Riscaldamento:
Autonomo
Tipo impianto:
A radiatori
Tipo alimentazione:
Altro

Ti interessa visionare l'immobile?

Fissa un appuntamento  Fissa un appuntamento

Richiedi informazioni

* Questi campi sono obbligatori

Calcola il tuo mutuo

Semplice e senza impegno
Anticipo

( % )
Mutuo

( % )

pochi semplici passi

inserisci i tuoi dati
Questionario completato
Grazie per aver richiesto un appuntamento senza impegno con un nostro Consulente del Credito e Assicurativo.

Hai inserito correttamente tutti i dati necessari e a breve riceverai una e-mail con un link da convalidare per inviare i tuoi dati.
Affiliato
Tecnoadda Srl
P.zza Vittorio Emanuele II, 32 26027 Rivolta D'Adda (CR)

Il nostro staff


  • Emilio Cattolico
    Affiliato

  • Stefano Mazzocco
    Responsabile

  • Cristina Gualdoni
    Coordinatrice

  • Mario Di Lorenzo
    Collaboratore

  • Alessia Facchetti
    Coordinatrice

  • Claudio Viavattene
    Collaboratore
P.zza Vittorio Emanuele II, 32 26027 Rivolta D'Adda (CR)
Zona: Rivolta d'Adda - Arzago d'Adda - Agnadello
Mostra su mappa
Orari: da lunedì a venerdì dalle ore 09.00 alle ore 20.00; sabato dalle ore 09.00 alle 12.30 e dalle 14.30 alle ore 18.00
Affiliato
Tecnoadda Srl
P.zza Vittorio Emanuele II, 32 26027 Rivolta D'Adda (CR)

2025 Tecnocasa Franchising S.p.A. - P. IVA 08365160152 - Via Monte Bianco 60/A 20089 Rozzano (MI). Ogni agenzia ha un proprio titolare ed è autonoma. Privacy policy | Policy utilizzo | Cookie policy