Trilocale in vendita

Rivolta D'Adda, Via Gioacchino Rossini
€ 180.000
3 locali 3 locali
90 Mq 90 Mq
1 bagno 1 bagno

Trilocale in vendita

Rivolta D'Adda, Via Gioacchino Rossini

Descrizione annuncio

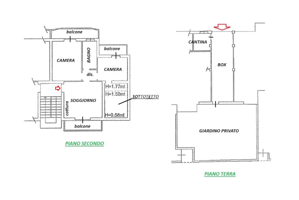
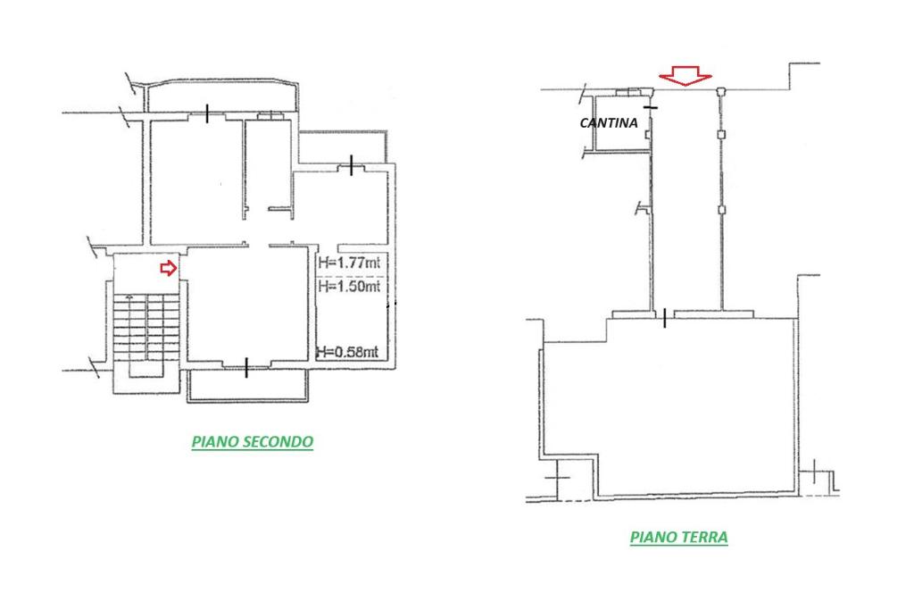
RIVOLTA D'ADDA: In contesto condominiale edificato nel 2004, proponiamo in vendita appartamento di tre locali e servizi con cortile privato.

L'ingresso si apre sulla zona giorno composta da un unico locale con angolo cottura. Il disimpegno serve le due camere da letto e il bagno dotato sia di vasca sia di doccia. Dalla camere matrimoniale si ha accesso ad un locale sottotetto di 11 mq, mansardato, ad uso ripostiglio, con attacco lavatrice.

L'appartamento dispone di 3 balconi, uno accessibile dal soggiorno e gli altri due dalle due camere da letto.

L'abitazione si trova al secondo ed ultimo piano della palazzina e tramite una botola posta nel disimpegno, con scala retrattile, si ha accesso al solaio rifinito e mansardato, non abitabile.

La proprietà è completata da cantina e box doppio di 25 mq, al piano terra. Dal box si ha accesso al cortile privato di 71 mq, posto anch'esso al piano terra, con esposizione a est.

I serramenti sono in legno e doppio vetro con persiane in alluminio; i pavimenti sono in ceramica ad eccezione delle camere da letto e del locale sottotetto/ripostiglio rifiniti in parquet. L'immobile dispone di riscaldamento autonomo, aria condizionata, zanzariere, porta blindata e videocitofono.

Mostra tutto

Nelle vicinanze

Trasporto pubblico Trasporto pubblico
Via Matteotti - posta
Via Matteotti - posta
390 m
Via GIulio Cesare - edicola
Via GIulio Cesare - edicola
740 m
Ricariche auto elettriche Ricariche auto elettriche
Evbility Rivolta d'adda
740 m
U2 Supermercato Rivolta d'Adda | EnelX
910 m
Scuole Scuole
Scuola Elementare E. Calvi
750 m
Scuola Media D. Birago
830 m
Ospedali Ospedali
Ospedale "Santa Marta"
650 m
Supermercati Supermercati
Carrefour
370 m
U2
900 m
MD Market
1,0 Km
Negozi Negozi
Panificio Pasticceria Maristella
490 m
Casa del Pane
540 m
Bar Bar
Bar Centrale
520 m
Bar
1,2 Km
Ristoranti Ristoranti
Ristorante Italia
630 m
L'antico sapore
660 m
Agriturismo Alla Ribella
1,8 Km
Agriturismo La Cascina Rossa
2,1 Km
Agriturismo Le Monache
2,7 Km
Mostra tutto

Caratteristiche

Rif.:
61123423
Piano:
2 di 2 (ultimo Piano)
Box:
1
Balconi:
3
Camere da letto:
2
Arredamento:
Assente
Mostra tutto
Prezzo Prezzo
€ 180.000
Rata mutuo Rata mutuo
€ 848 / mese
Spese annue Spese annue
€ 800
Proponi il tuo prezzoProponi il tuo prezzo

Classe Energetica

D
D
D
D
D
D
D
D
D
EP globale non rinnovabile:
180.00 kW h/m² anno
EP globale rinnovabile:
180.77 kW h/m² anno
EP invernale del fabbricato:
EP estiva del fabbricato:
Anno di costruzione:
2004
Riscaldamento:
Autonomo
Tipo impianto:
A radiatori
Tipo alimentazione:
Altro

Ti interessa visionare l'immobile?

Fissa un appuntamento  Fissa un appuntamento

Richiedi informazioni

Clicca su Leggi per aprire l'informativa
* Questi campi sono obbligatori

Calcola il tuo mutuo

Semplice e senza impegno
Anticipo

( % )
Mutuo

( % )

pochi semplici passi

inserisci i tuoi dati
Questionario completato
Grazie per aver richiesto un appuntamento senza impegno con un nostro Consulente del Credito e Assicurativo.

Hai inserito correttamente tutti i dati necessari e a breve riceverai una e-mail con un link da convalidare per inviare i tuoi dati.
Affiliato
Tecnoadda Srl
P.zza Vittorio Emanuele II, 32 26027 Rivolta D'Adda (CR)

Il nostro staff


  • Emilio Cattolico
    Affiliato

  • Stefano Mazzocco
    Responsabile

  • Cristina Gualdoni
    Coordinatrice

  • Mario Di Lorenzo
    Collaboratore

  • Alessia Facchetti
    Coordinatrice

  • Claudio Viavattene
    Collaboratore
P.zza Vittorio Emanuele II, 32 26027 Rivolta D'Adda (CR)
Zona: Rivolta d'Adda - Arzago d'Adda - Agnadello
Mostra su mappa
Orari: da lunedì a venerdì dalle ore 09.00 alle ore 20.00; sabato dalle ore 09.00 alle 12.30 e dalle 14.30 alle ore 18.00
Affiliato
Tecnoadda Srl
P.zza Vittorio Emanuele II, 32 26027 Rivolta D'Adda (CR)

2026 Tecnocasa Franchising S.p.A. - P. IVA 08365160152 - Via Monte Bianco 60/A 20089 Rozzano (MI). Ogni agenzia ha un proprio titolare ed è autonoma. Privacy policy | Policy utilizzo | Cookie policy