Villa a schiera centrale in vendita

Agnadello, Via Sandro Pertini
€ 205.000
4 locali 4 locali
151 Mq 151 Mq
2 bagni 2 bagni

Villa a schiera centrale in vendita

Agnadello, Via Sandro Pertini

Descrizione annuncio

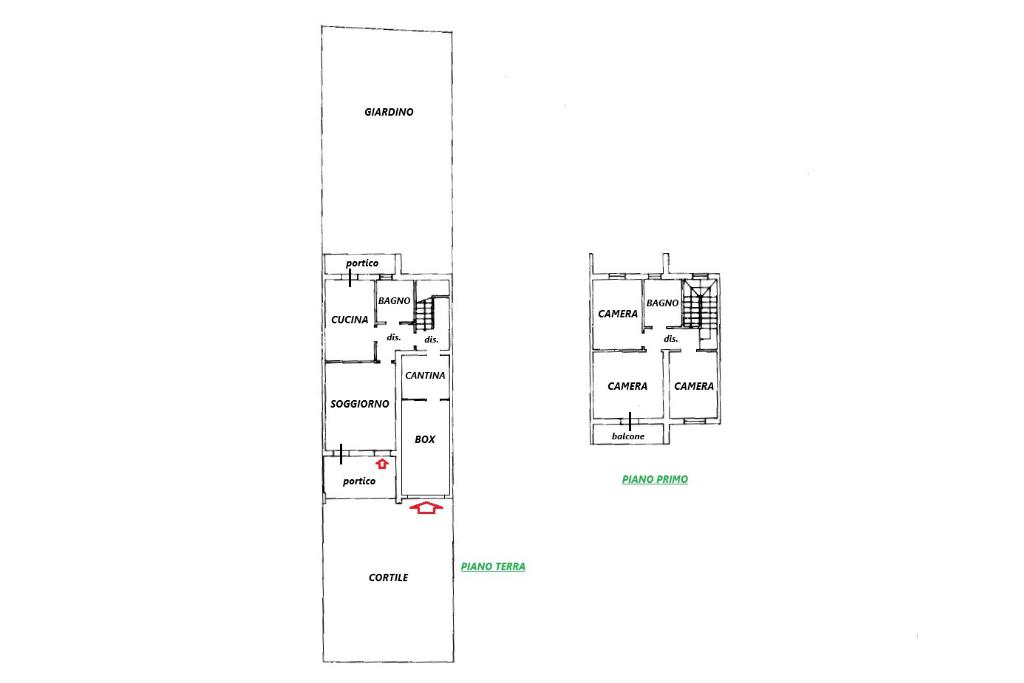
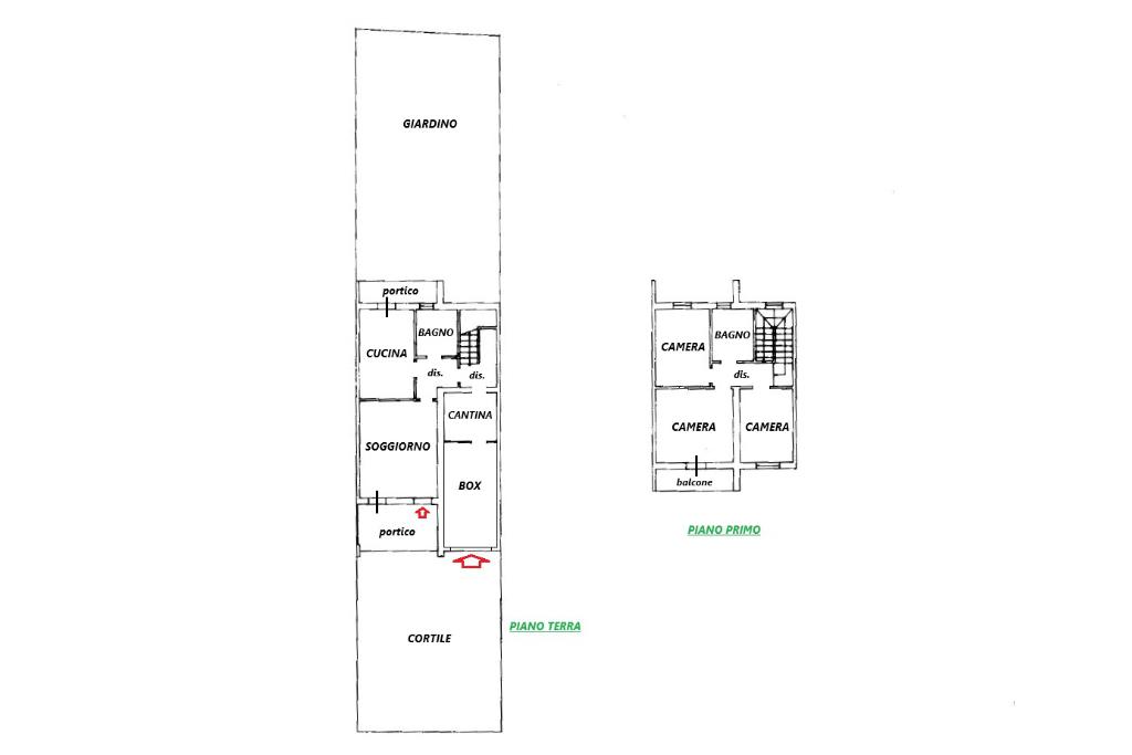
AGNADELLO: In tranquillo quartiere residenziale, proponiamo in vendita villa a schiera centrale, di quattro locali e doppi servizi con giardino.

L'abitazione, di 122 mq, si sviluppa su due livelli. L'ingresso al piano terra si apre sulla zona giorno, composta da un ampio soggiorno e cucina abitabile. Sempre al piano terra troviamo il bagno con doccia, il locale cantina di ulteriori circa 8 mq con attacco lavatrice e il box singolo con accesso diretto dalla cantina. Tramite la scala interna si accede al piano primo, dove la zona notte è divisa in disimpegno, tre camere da letto e bagno con vasca.

L'immobile dispone di area esterna privata posta sia sul fronte sia sul retro: dalla cucina si ha accesso al giardino di 97 mq con portico di circa 5 mq, mentre a fare da ingresso all'abitazione abbiamo il cortile di 68 mq con portico di 9 mq.

Mostra tutto

Nelle vicinanze

Trasporto pubblico Trasporto pubblico
Trasporto pubblico
230 m
Farmacia Farmacia
Farmacia Doneda
410 m
Supermercati Supermercati
Carrefour Market
310 m
Conad
310 m
Bar Bar
Bar Giardino
400 m
Bramby Bar
430 m
Lucky Bar
480 m
Bar Gradella
2,7 Km
Ristoranti Ristoranti
Pizzeria Castello
450 m
Il borgo
2,7 Km
Osteria degli Amici
2,7 Km
Agriturismo Alla Ribella
2,8 Km
Agriturismo La Cascina Rossa
2,9 Km
Mostra tutto

Caratteristiche

Rif.:
61197402
Piano:
Su più livelli di 2
Totale piani:
2
Box:
1
Balconi:
1
Camere da letto:
3
Mostra tutto
Prezzo Prezzo
€ 205.000
Rata mutuo Rata mutuo
€ 966 / mese
Spese annue Spese annue
€ 0
Proponi il tuo prezzoProponi il tuo prezzo

Classe Energetica

E
E
E
E
E
E
E
E
E
EP globale non rinnovabile:
180.02 kW h/m² anno
EP globale rinnovabile:
0.19 kW h/m² anno
EP invernale del fabbricato:
EP estiva del fabbricato:
Anno di costruzione:
1993
Riscaldamento:
Autonomo
Tipo impianto:
A radiatori
Tipo alimentazione:
Altro

Ti interessa visionare l'immobile?

Fissa un appuntamento  Fissa un appuntamento

Richiedi informazioni

Clicca su Leggi per aprire l'informativa
* Questi campi sono obbligatori

Calcola il tuo mutuo

Semplice e senza impegno
Anticipo

( % )
Mutuo

( % )

pochi semplici passi

inserisci i tuoi dati
Questionario completato
Grazie per aver richiesto un appuntamento senza impegno con un nostro Consulente del Credito e Assicurativo.

Hai inserito correttamente tutti i dati necessari e a breve riceverai una e-mail con un link da convalidare per inviare i tuoi dati.
Affiliato
Tecnoadda Srl
P.zza Vittorio Emanuele II, 32 26027 Rivolta D'Adda (CR)

Il nostro staff


  • Emilio Cattolico
    Affiliato

  • Stefano Mazzocco
    Responsabile

  • Cristina Gualdoni
    Coordinatrice

  • Mario Di Lorenzo
    Collaboratore

  • Alessia Facchetti
    Coordinatrice

  • Claudio Viavattene
    Collaboratore
P.zza Vittorio Emanuele II, 32 26027 Rivolta D'Adda (CR)
Zona: Rivolta d'Adda - Arzago d'Adda - Agnadello
Mostra su mappa
Orari: da lunedì a venerdì dalle ore 09.00 alle ore 20.00; sabato dalle ore 09.00 alle 12.30 e dalle 14.30 alle ore 18.00
Affiliato
Tecnoadda Srl
P.zza Vittorio Emanuele II, 32 26027 Rivolta D'Adda (CR)

2026 Tecnocasa Franchising S.p.A. - P. IVA 08365160152 - Via Monte Bianco 60/A 20089 Rozzano (MI). Ogni agenzia ha un proprio titolare ed è autonoma. Privacy policy | Policy utilizzo | Cookie policy