Villa a schiera d'angolo in vendita

Agnadello, Via Edoardo Bosio
€ 259.000
4 locali 4 locali
134 Mq 134 Mq
2 bagni 2 bagni

Villa a schiera d'angolo in vendita

Agnadello, Via Edoardo Bosio

Descrizione annuncio

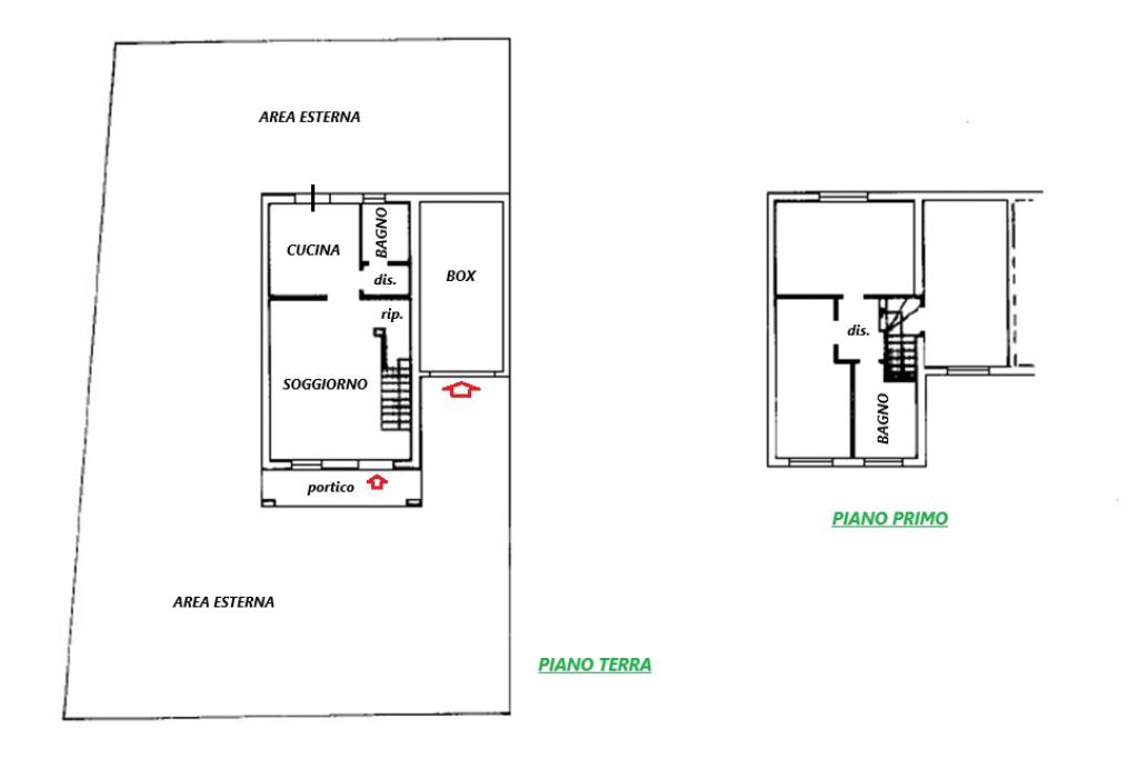
AGNADELLO: In tranquillo contesto residenziale, proponiamo in vendita villa a schiera di testa, di quattro locali e doppi servizi.

L'abitazione, di 98 mq, si sviluppa su due livelli. L'ingresso si apre sulla zona giorno, composta da soggiorno, cucina abitabile, antibagno con attacco lavatrice, bagno con doccia e ripostiglio sottoscala. Tramite la scala interna si accede al piano primo, dove la zona notte è suddivisa in due camere da letto e bagno padronale con vasca. Sempre al piano primo troviamo il locale sottotetto di ulteriori 18 mq, utilizzabile come terza camera da letto.

Completano la proprietà il box di 18 mq al piano terra, il portichetto d'ingresso di 6 mq e l'ampia area esterna piantumata, con esposizione a ovest, di 241 mq, che circonda l'abitazione su tre lati.

I serramenti sono in legno e doppio vetro con persiane in legno; i pavimenti sono in ceramica. L'immobile dispone inoltre di zanzariere, inferriate e cancello automatico.

Mostra tutto

Nelle vicinanze

Trasporto pubblico Trasporto pubblico
Trasporto pubblico
430 m
Farmacia Farmacia
Farmacia Doneda
590 m
Supermercati Supermercati
Conad
450 m
Carrefour Market
450 m
Bar Bar
Bar Giardino
590 m
Bramby Bar
620 m
Lucky Bar
660 m
Bar Gradella
2,5 Km
Ristoranti Ristoranti
Pizzeria Castello
630 m
Il borgo
2,5 Km
Osteria degli Amici
2,5 Km
Agriturismo La Cascina Rossa
2,9 Km
Agriturismo Alla Ribella
2,9 Km
Mostra tutto

Caratteristiche

Rif.:
61188061
Piano:
Su più livelli di 2
Totale piani:
2
Box:
1
Camere da letto:
3
Arredamento:
Assente
Mostra tutto
Prezzo Prezzo
€ 259.000
Rata mutuo Rata mutuo
€ 1.229 / mese
Spese annue Spese annue
€ 0
Proponi il tuo prezzoProponi il tuo prezzo

Classe Energetica

F
F
F
F
F
F
F
F
F
EP globale non rinnovabile:
259.78 kW h/m² anno
EP globale rinnovabile:
0.00 kW h/m² anno
EP invernale del fabbricato:
EP estiva del fabbricato:
Anno di costruzione:
1999
Riscaldamento:
Autonomo
Tipo impianto:
A radiatori
Tipo alimentazione:
Altro

Ti interessa visionare l'immobile?

Fissa un appuntamento  Fissa un appuntamento

Richiedi informazioni

Clicca su Leggi per aprire l'informativa
* Questi campi sono obbligatori

Calcola il tuo mutuo

Semplice e senza impegno
Anticipo

( % )
Mutuo

( % )

pochi semplici passi

inserisci i tuoi dati
Questionario completato
Grazie per aver richiesto un appuntamento senza impegno con un nostro Consulente del Credito e Assicurativo.

Hai inserito correttamente tutti i dati necessari e a breve riceverai una e-mail con un link da convalidare per inviare i tuoi dati.
Affiliato
Tecnoadda Srl
P.zza Vittorio Emanuele II, 32 26027 Rivolta D'Adda (CR)

Il nostro staff


  • Emilio Cattolico
    Affiliato

  • Stefano Mazzocco
    Responsabile

  • Cristina Gualdoni
    Coordinatrice

  • Mario Di Lorenzo
    Collaboratore

  • Alessia Facchetti
    Coordinatrice

  • Claudio Viavattene
    Collaboratore
P.zza Vittorio Emanuele II, 32 26027 Rivolta D'Adda (CR)
Zona: Rivolta d'Adda - Arzago d'Adda - Agnadello
Mostra su mappa
Orari: da lunedì a venerdì dalle ore 09.00 alle ore 20.00; sabato dalle ore 09.00 alle 12.30 e dalle 14.30 alle ore 18.00
Affiliato
Tecnoadda Srl
P.zza Vittorio Emanuele II, 32 26027 Rivolta D'Adda (CR)

2026 Tecnocasa Franchising S.p.A. - P. IVA 08365160152 - Via Monte Bianco 60/A 20089 Rozzano (MI). Ogni agenzia ha un proprio titolare ed è autonoma. Privacy policy | Policy utilizzo | Cookie policy