Villa a schiera d'angolo in vendita

Agnadello, Via Donatori Volontari
€ 289.000
Prezzo aggiornato
5 locali 5 locali
201 Mq 201 Mq
2 bagni 2 bagni

Villa a schiera d'angolo in vendita

Agnadello, Via Donatori Volontari

Descrizione annuncio

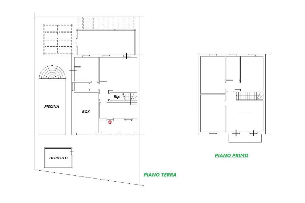
AGNADELLO: In tranquillo quartiere residenziale, proponiamo in vendita villa a schiera di testa, 5 locali e doppi servizi.

L'abitazione, di 155 mq, si sviluppa su due livelli. Al piano terra troviamo l'ingresso, il soggiorno con angolo cottura, lavanderia e bagno con doccia. Dal soggiorno si ha accesso ad un portico chiuso di 26 mq, dotato di aria condizionata e riscaldato da stufa. La zona notte si trova al piano primo, suddiviso in quattro camere, di cui una con camino e ad oggi usata come seconda area relax, e bagno con vasca. Dalla stanza relax si ha accesso al balcone di 4,60 mq.

Fiore all'occhiello di questa soluzione è lo spazio esterno di 168 mq. L'area esterna è stata sapientemente sfruttata dagli attuali proprietari, con l'aggiunta di un pergolato di 25 mq, piscina in muratura di 25 mq e deposito attrezzi di 9 mq.

Completa la proprietà il box singolo al piano terra, collegato direttamente all'abitazione.

Mostra tutto

Nelle vicinanze

Trasporto pubblico Trasporto pubblico
Trasporto pubblico
440 m
Farmacia Farmacia
Farmacia Doneda
400 m
Supermercati Supermercati
Carrefour Market
590 m
Conad
600 m
Bar Bar
Bar Giardino
390 m
Lucky Bar
390 m
Bramby Bar
390 m
Ristoranti Ristoranti
Pizzeria Castello
390 m
Agriturismo Alla Ribella
2,9 Km
Mostra tutto

Caratteristiche

Rif.:
61128117
Piano:
Su più livelli di 2
Totale piani:
2
Box:
1
Balconi:
1
Camere da letto:
3
Mostra tutto
Prezzo Prezzo
€ 289.000
Rata mutuo Rata mutuo
€ 1.350 / mese
Spese annue Spese annue
€ 0
Proponi il tuo prezzoProponi il tuo prezzo

Classe Energetica

E
E
E
E
E
E
E
E
E
EP globale non rinnovabile:
170.02 kW h/m² anno
EP globale rinnovabile:
0.37 kW h/m² anno
EP invernale del fabbricato:
EP estiva del fabbricato:
Anno di costruzione:
2000
Riscaldamento:
Autonomo
Tipo impianto:
A radiatori
Tipo alimentazione:
Altro

Prezzo ridotto di €1 (3%%)

Ti interessa visionare l'immobile?

Fissa un appuntamento  Fissa un appuntamento

Richiedi informazioni

Clicca su Leggi per aprire l'informativa
* Questi campi sono obbligatori

Calcola il tuo mutuo

Semplice e senza impegno
Anticipo

( % )
Mutuo

( % )

pochi semplici passi

inserisci i tuoi dati
Questionario completato
Grazie per aver richiesto un appuntamento senza impegno con un nostro Consulente del Credito e Assicurativo.

Hai inserito correttamente tutti i dati necessari e a breve riceverai una e-mail con un link da convalidare per inviare i tuoi dati.
Affiliato
Tecnoadda Srl
P.zza Vittorio Emanuele II, 32 26027 Rivolta D'Adda (CR)

Il nostro staff


  • Emilio Cattolico
    Affiliato

  • Stefano Mazzocco
    Responsabile

  • Cristina Gualdoni
    Coordinatrice

  • Mario Di Lorenzo
    Collaboratore

  • Alessia Facchetti
    Coordinatrice

  • Claudio Viavattene
    Collaboratore
P.zza Vittorio Emanuele II, 32 26027 Rivolta D'Adda (CR)
Zona: Rivolta d'Adda - Arzago d'Adda - Agnadello
Mostra su mappa
Orari: da lunedì a venerdì dalle ore 09.00 alle ore 20.00; sabato dalle ore 09.00 alle 12.30 e dalle 14.30 alle ore 18.00
Affiliato
Tecnoadda Srl
P.zza Vittorio Emanuele II, 32 26027 Rivolta D'Adda (CR)

2026 Tecnocasa Franchising S.p.A. - P. IVA 08365160152 - Via Monte Bianco 60/A 20089 Rozzano (MI). Ogni agenzia ha un proprio titolare ed è autonoma. Privacy policy | Policy utilizzo | Cookie policy