Bilocale in vendita

Agnadello, Via della Vittoria
€ 109.000
2 locali 2 locali
75 Mq 75 Mq
1 bagno 1 bagno

Bilocale in vendita

Agnadello, Via della Vittoria

Descrizione annuncio

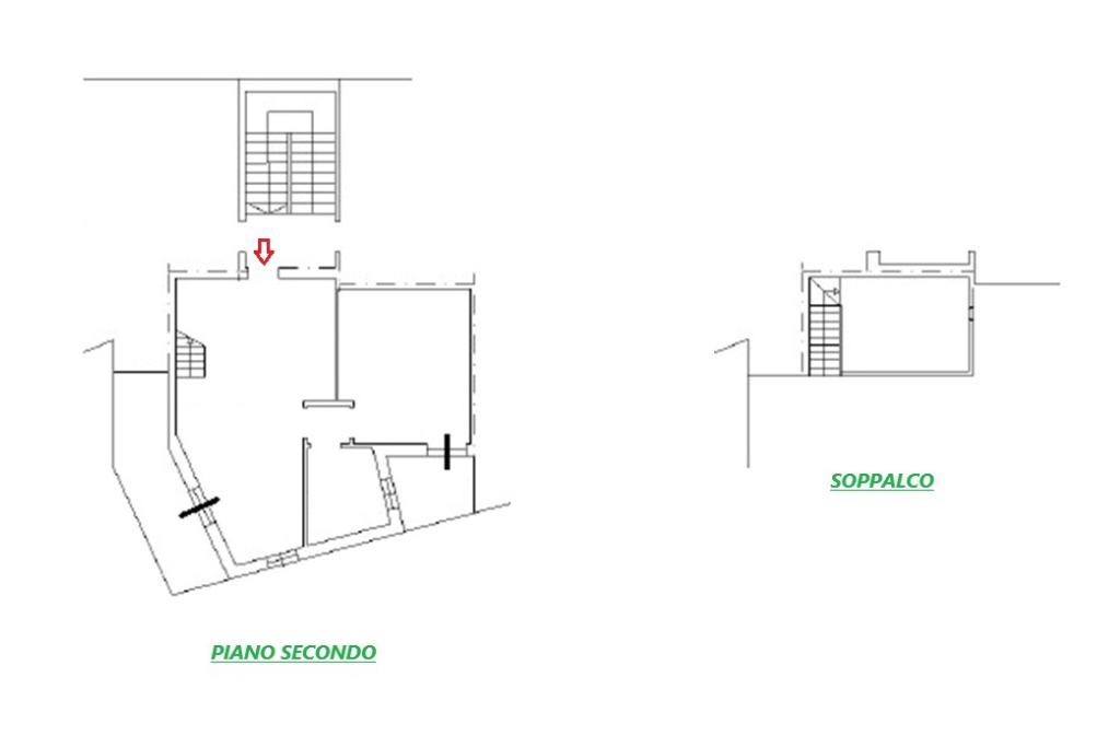
AGNADELLO: In tranquillo contesto residenziale, proponiamo in vendita appartamento di due locali e servizi con soppalco e ampio box.

L'abitazione, di 48 mq, si trova al secondo ed ultimo piano della palazzina ed è caratterizzata da soffitto mansardato con travi a vista in legno. L'ingresso si apre sulla zona giorno, composta da un unico locale open space con angolo cottura. Tramite una scala interna si accede al locale soppalcato di ulteriori circa 11 mq, ad oggi usato area relax. Sempre dalla zona giorno si ha accesso al terrazzo coperto di 8 mq.

Il disimpegno serve la zona notte, composta da camera da letto matrimoniale e bagno con vasca. Dalla camera da letto si ha accesso al balcone di 3 mq.

Completa la proprietà il box di 27 mq al piano terra con basculante elettrica.

I serramenti sono in legno e doppio vetro con persiane in legno; i pavimenti sono in ceramica. L'immobile dispone di riscaldamento autonomo, aria condizionata, zanzariere e porta blindata.

La classe energetica è in fase di aggiornamento.

Mostra tutto

Nelle vicinanze

Trasporto pubblico Trasporto pubblico
Trasporto pubblico
240 m
Farmacia Farmacia
Farmacia Doneda
90 m
Supermercati Supermercati
Carrefour Market
200 m
Conad
200 m
Bar Bar
Lucky Bar
80 m
Bramby Bar
90 m
Bar Giardino
120 m
Ristoranti Ristoranti
Pizzeria Castello
80 m
Mostra tutto

Caratteristiche

Rif.:
61131166
Piano:
2 di 2 (ultimo Piano)
Box:
1
Balconi:
1
Terrazzi:
1
Camere da letto:
1
Mostra tutto
Prezzo Prezzo
€ 109.000
Rata mutuo Rata mutuo
€ 514 / mese
Spese annue Spese annue
€ 450
Proponi il tuo prezzoProponi il tuo prezzo

Classe Energetica

G
G
G
G
G
G
G
G
G
EP globale non rinnovabile:
175.00 kW h/m² anno
EP invernale del fabbricato:
EP estiva del fabbricato:
Anno di costruzione:
2003
Riscaldamento:
Autonomo
Tipo impianto:
A radiatori
Tipo alimentazione:
Altro

Ti interessa visionare l'immobile?

Fissa un appuntamento  Fissa un appuntamento

Richiedi informazioni

Clicca su Leggi per aprire l'informativa
* Questi campi sono obbligatori

Calcola il tuo mutuo

Semplice e senza impegno
Anticipo

( % )
Mutuo

( % )

pochi semplici passi

inserisci i tuoi dati
Questionario completato
Grazie per aver richiesto un appuntamento senza impegno con un nostro Consulente del Credito e Assicurativo.

Hai inserito correttamente tutti i dati necessari e a breve riceverai una e-mail con un link da convalidare per inviare i tuoi dati.
Affiliato
Tecnoadda Srl
P.zza Vittorio Emanuele II, 32 26027 Rivolta D'Adda (CR)

Il nostro staff


  • Emilio Cattolico
    Affiliato

  • Stefano Mazzocco
    Responsabile

  • Cristina Gualdoni
    Coordinatrice

  • Mario Di Lorenzo
    Collaboratore

  • Alessia Facchetti
    Coordinatrice

  • Claudio Viavattene
    Collaboratore
P.zza Vittorio Emanuele II, 32 26027 Rivolta D'Adda (CR)
Zona: Rivolta d'Adda - Arzago d'Adda - Agnadello
Mostra su mappa
Orari: da lunedì a venerdì dalle ore 09.00 alle ore 20.00; sabato dalle ore 09.00 alle 12.30 e dalle 14.30 alle ore 18.00
Affiliato
Tecnoadda Srl
P.zza Vittorio Emanuele II, 32 26027 Rivolta D'Adda (CR)

2026 Tecnocasa Franchising S.p.A. - P. IVA 08365160152 - Via Monte Bianco 60/A 20089 Rozzano (MI). Ogni agenzia ha un proprio titolare ed è autonoma. Privacy policy | Policy utilizzo | Cookie policy